86-021-54422420 13818829143
86-021-54422402 17701898099
All products
联轴器 Coupling
传动轮 Pulley
胀套 Lock
丝杆导轨 ScrewGuide
离合制动器 Clutch
传动器 Actuators
皮带 Belt
电机 Motor
轴承 Bearing

21CCP棉纺机同步轮, 30CCP美标大节距QD锥套同步轮 32CCP大节距QD同步轮 38CCP同步轮厂家-迈动工业
21CCP cotton spinning machine synchronous wheel 30CCP cotton spinning machine cleaning machine synchronous wheel 32CCP, QD cone sleeve synchronous wheel 38CCP synchronous wheel manufacturer-Midon
棉纺清洁机同步轮在棉纺机械中扮演着至关重要的角色,尤其是在需要精确同步传动、
高可靠性和低维护的地方,其特性和优点如下:
1. 大扭力,单档边,易装折, QD锥套胀紧,无间隙,防棉纤沉设计:厚实,耐用。High torque, single-stage edge, easy to assemble and fold, QD cone sleeve tightly expands without gaps, anti cotton fiber sinking design: thick and durable.
2.精确的同步均速传动: 通过轮齿与同步带齿的啮合传动,实现主动轮与从动轮之间严格的无滑差传动。精确的速度比和相位关系,对于棉纺机至关重要,例如牵伸区的多个罗拉必须保持精确的速度差(牵伸比),卷绕机构需要精确的卷绕速度和导纱动程配合,否则会导致纱线质量严重下降(条干不匀、细节、粗节、断头等)。Accurate Accurate synchronous equal speed transmission: Through the meshing transmission of gear teeth and synchronous belt teeth, strict slip free transmission is achieved between the driving wheel and the driven wheel. Accurate speed ratio and phase relationship are crucial for cotton spinning machines. For example, multiple rollers in the stretching zone must maintain precise speed differences (stretching ratio), and the winding mechanism requires precise winding speed and yarn guide stroke coordination, otherwise it will lead to serious deterioration of yarn quality (uneven yarn, details, coarse knots, broken ends, etc.)
3. 高传动效率:啮合传动方式减少了摩擦损失(相比摩擦传动如平带、V带),传动效率通常在98%以上。这降低了能耗,对于长时间、高负荷运行棉纺厂具有经济效益。
High transmission efficiency: The meshing transmission method reduces friction losses (compared to friction transmission such as flat belt and V-belt), and the transmission
efficiency is usually above 98%. This reduces energy consumption and has economic benefits for cotton mills operating at high loads for long periods of time.
4. 良好的冲击负载能力:齿形啮合设计使其能够传递较大的扭矩,同时保持同步精度。能够适应棉纺机中启动、变速、负载波动等工况。
Good impact load capacity: The tooth meshing design enables it to transmit large torque while maintaining synchronization accuracy. Capable of adapting to working conditions such as starting, variable speed, and load fluctuations in cotton spinning machines.


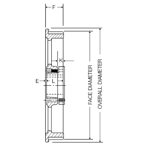
同步轮尺寸
| 型号 PRODUCT NUMBER | 齿数 NO GROOVES | 齿外径 FACE DIAMETER | 挡边径 O.A DIAMETER | 款式 TYPE | 锥套 BUSHING | 边距 E | 总宽 F | 台边距 K | 锥套长 L | 重量 KG |
| 21CCP | 21 | 6 594 | 7-3/16 | Bushed | SK | 1/16 | 1-15/16 | 5/8 | 1-7/8 | 11.5 |
| 30CCP | 30 | 9 459 | 10 | Bushed | SK | 1/16 | 1-15/16 | 5/8 | 1-7/8 | 16.5 |
| 32CCP | 32 | 10.278 | 10-12/16 | Bushed | SK | 1/16 | 1-15/16 | 5/8 | 1-7/8 | 18.5 |
| 38CCP | 38 | 12.006 | 12-5/8 | Bushed | SK | 1/16 | 1-15/16 | 5/8 | 1-7/8 | 23.5 |

长度可以订制同步带尺寸:P=1=25.4MM
60CCB150 61CCB142 63CCB165 64CCB170 65CCB175
| 型号 PRODUCT NUMBER | 节线长度 (英寸) PITCH LENGTH(IN) | 中心距离 (英寸) CENTER DISTANCE(IN) |
| 60CCB150 | 60 | 15 |
| 61CCB142 | 61 | 14.25 |
| 63CCB165 | 63 | 15.5 |
| 64CCB170 | 64 | 17 |
| 65CCB175 | 65 | 17.5 |

公司名称:上海迈动机电设备有限公司
公司地址:上海青浦工业区崧海路98号
邮政编码:201703
公司电话:021-54422420
公司传真:021-54422420-801
邮箱:shmidon@126.com
户名:上海迈动机电设备有限公司
税号:310112660703692
开户行:工行上海莘庄支行
账号:1001140209007024765
电话:021-54422420 54422402
传真:021-54422420-801
地址:上海莘庄工业园区申富路128号(开票)
地址:上海青浦工业园区崧海路98号(收货地址)
上海迈动机电设备有限公司提供17%的增值税发票;
品质100%保证,让你更放心使用。
ADD:上海迈动机电设备有限公司 备案号:沪ICP备15037005
TEL:86-021-54422420,021-544227902 ,021-54422402 MB:13818829143,17701898099